Prestations

Votre projet de A à Z:
Architecte d’intérieur et décoratrice, j’accompagne chaque projet avec une approche sur mesure, de l’analyse des lieux jusqu’au suivi de chantier.
Ma démarche conjugue créativité, maîtrise des volumes et sens du détail, dans le respect de votre mode de vie, de vos attentes et de votre budget.
Qu’il s’agisse d’une rénovation partielle ou complète, d’un aménagement sur mesure ou d’un accompagnement ponctuel, FB Design propose des prestations adaptées à chaque projet.

5. Suivi du budget
Je vous accompagne pour:
- définir un objectif budgétaire
- consulter les artisans pour devis et négociations.
- Recherche et déplacement pour sélection mobiliers et accessoires
- Mise-en-place d’un tableau de suivi des dépenses

6. Suivi de chantier
Je veille à la:
- Coordination et planification avec les artisans intervenant sur le chantier
- Suivi de conformité esthétique et ergonomique du projet
- Commande et réception livraison marchandises

4. Décoration
Je réalise :
- Une page mobilier/déco par pièce avec les couleurs , les formes et les matériaux.
- Shopping Liste suggestive de décoration
- Achat et mise en place du mobiliers et accessoires

3. Avant Projet Détaillé
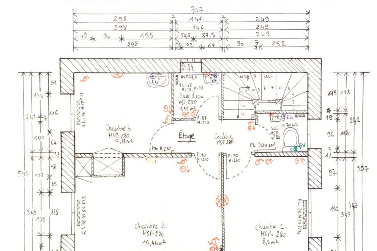
Après validation de l’Avant-Projet Sommaire (APS), je réalise les plans d’aménagement définitifs en 2D, accompagnés de perspectives 3D, afin de vous permettre de vous projeter pleinement dans votre futur espace.
Ces plans détaillés en 2D constituent une base technique essentielle et servent de référence aux artisans pour la bonne réalisation des travaux, dans le respect du projet validé.

2. Avant projet Sommaire
Je vous propose 2/3 propositions d'implantation au sol avec les plans 2D à l'échelle 1/50 ème.
J'apporte un conseil éclairé dans la prise de décision pour la validation de l'Avant Projet Sommaire (APS).

1. Analyse du projet
Lors de notre premier rendez-vous, j'analyse vos besoins, vos attentes et votre mode de vie afin de poser les fondations d'un projet sur mesure, en accord avec vos goûts et votre budget.
Un relevé précis de l'existant est réalisé puis retranscrit sur plan pour garantir une conception rigoureuse et maîtrisée
FB design
Mon savoir-faire s'accompagne de toutes les garanties légales nécessaires, dont la responsabilité civile et la décennale.
